Charmant studio La Clusaz 4 pers, prox. pistes - FR-1-818-106 - La Clusaz
Discover exceptional accommodation options in Lyon France and nearby. Book luxury hotels, boutique properties, budget hostels, apartments in Lyon and vacation rentals near top attractions including Basilique Notre Dame Fourviere, Vieux Lyon medieval quarter, and Place Bellecour. Explore nearby destinations like Beaujolais wine region with golden stone villages, medieval Perouges, ancient Vienne, Pilat Regional Natural Park. Find flight deals to Lyon Saint Exupery airpoirt. Get car rental prices.
Charmant studio La Clusaz 4 pers, prox. pistes - FR-1-818-106
La Clusaz 92 chemin des Riffroids
We speak
ES FR
We speak
ES FR
Boasting accommodation with a balcony, Charmant studio La Clusaz 4 pers, prox. Pistes - FR-1-818-106 isin La Clusaz. The property is around 45 km from Halle Olympique dAlbertville, 49 km from Jet dEau and 50 km from St. Pierre Cathedral. The property is non-smoking and is situated 29 km from Rochexpo.
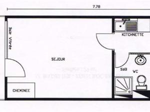
There is a dining area and a kitchen complete with a dishwasher, a microwave and a fridge. The accommodation offers a fireplace.
Skiing is possible within the area and the apartment offers ski storage space.
Gare de Cornavin is 50 km from Charmant studio La Clusaz 4 pers, prox. Pistes - FR-1-818-106.
The hotel day starts from hour 15:00 and ends at 10:00.
Guests are required to show a photo identification and credit card upon check-in. Please note thatSpecial Requests are subject to availability and additional charges may apply.
Please inform in advance of your expected arrival time. You can use the Special Requests box when booking, or contact the property directly with the contact details provided in your confirmation.
This property will not accommodate hen, stag or similar parties.
Studio. This studio provides a fireplace. The well-fitted kitchen features a refrigerator, a dishwasher, kitchenware and a microwave. This studio has a private bathroom, a private entrance, a dining area as well as a balcony. The unit offers 1 bed.
Ski storage
Cashless payment available
Staff follow all safety protocols as directed by local authorities
Skiing
Physical distancing rules followed
Invoice provided
Non-smoking throughout
